230 000 $
Продаж сучасного двоповерхового будиноку у с. Крихівці
  • 200 м2
  • Газ
  • Без ремонту
  • 2
  • 4 кімнати
  • с. Крихівці
  • Будинок
  • 8.5 сот2
  • Цегла
  • Електрика, Газ, Центральна каналізація, Центральний водопровід

Опис

🏡 Продаж сучасного двоповерхового будинку | с. Крихівці

Пропонується сучасний двоповерховий будинок у с. Крихівці, розташований у тихому приватному секторі поруч із ЖК «Калинова Слобода».
Ідеальне поєднання спокою заміського життя та швидкого доїзду до Івано-Франківська — до 10 хвилин.

Будинок виконаний у сучасному мінімалістичному стилі.
Великі панорамні вікна наповнюють простір природним світлом, а балкон зі скляним огородженням додає відчуття простору та статусу. Передбачене ландшафтне та фасадне підсвічування.

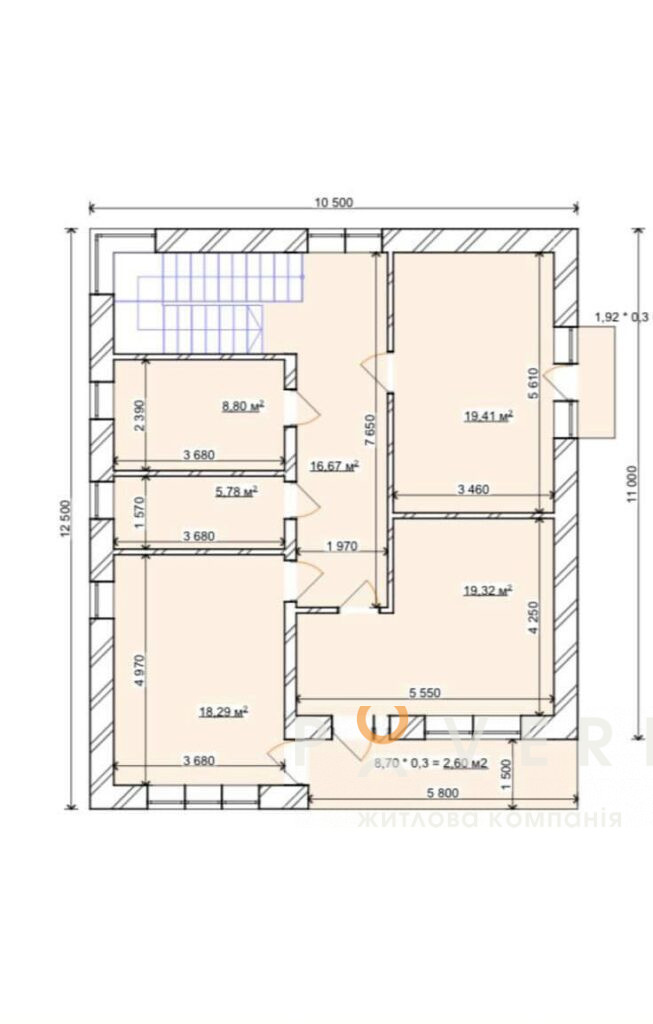
🧩 Планування:
3 окремі житлові кімнати
Простора кухня-вітальня 35,72 м² з виходом на терасу
Кілька санвузлів
Котельня
Гараж у будинку
📐 Площі:
Загальна — 200 м²
Житлова — 58 м²
Кухня-вітальня — 35,72 м²
📍 Локація та переваги:
Тиха, спокійна вулиця
Поруч річка
У пішій доступності міське озеро та парк
Престижне передмістя
Сучасна архітектура
Панорамні вікна
Ландшафтний дизайн
Багато підсвітки
Сучасний фасад
🔌 Комунікації:
Газ
Електроенергія — 10 кВт, 3 фази
Централізоване водопостачання
Міська каналізація
🛠️ У вартість входить:
Електророзводка
Гіпсова штукатурка та шпаклювання
Утеплення даху
Броньовані вхідні двері
Металопластикові п’ятикамерні вікна
Дах — металочерепиця
Перекриття між 1 та 2 поверхом
Дерев’яне перекриття між 2 поверхом і дахом
Утеплення та оздоблення фасаду (пінопласт)
Благоустрій території (бруківка)
Відкатні ворота
Паркан між сусідами
Озеленення території
✨ Ідеальний варіант для комфортного життя сім’ї у престижній локації.

📸 Можу надіслати додаткові фото та відео
📞 Для огляду — телефонуйте або пишіть у Direct

Продавець
Світлана